Alight

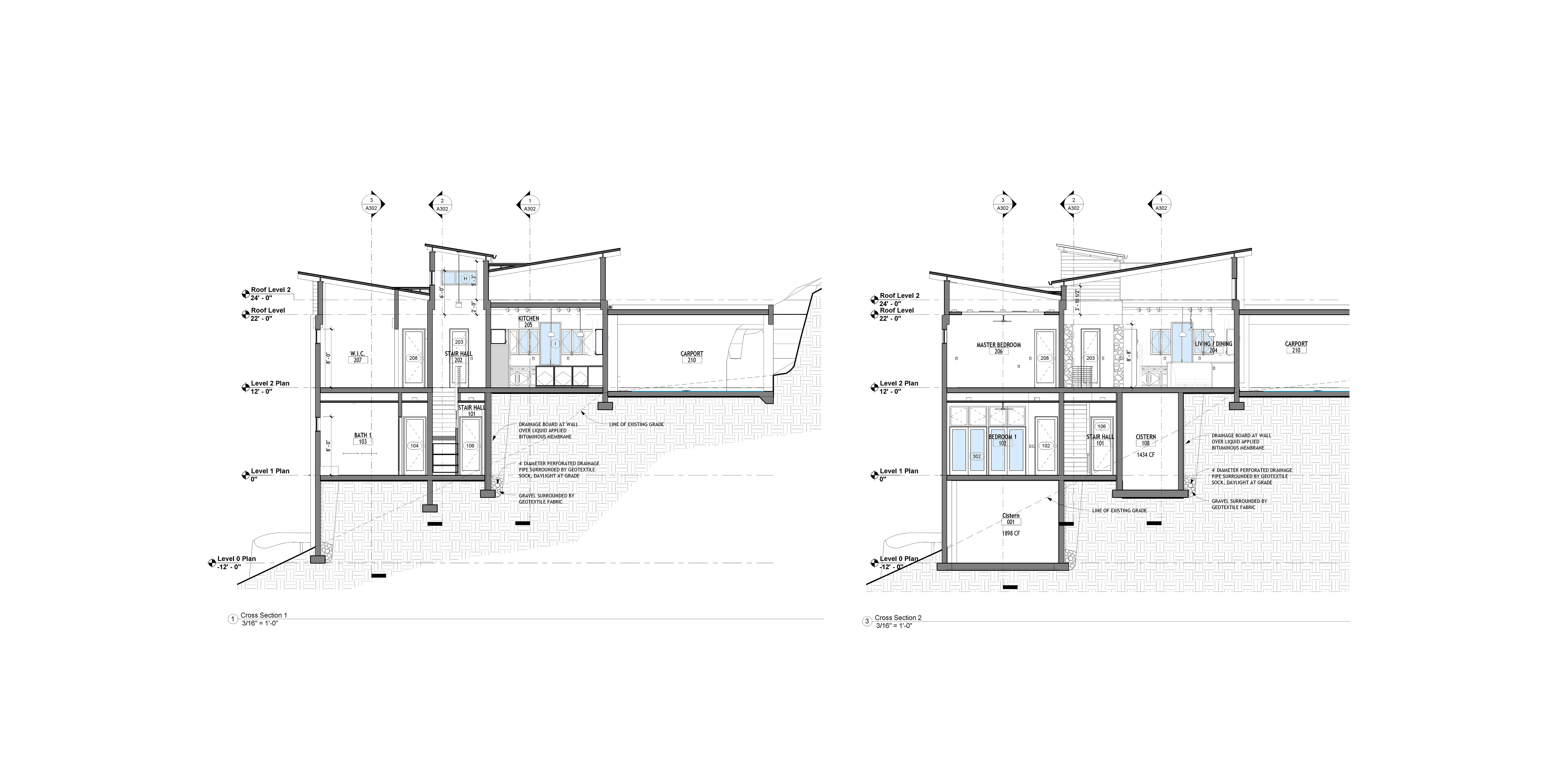
On a densely vegetated site this residence is inserted amongst greenery mostly left untouched.  The butterfly roof forms are visually separated from the main body of the building to emphasize a sense of lightness.  Alight’s living spaces are oriented to the sea views north of the site, while the private spaces step down the hillside to the east minimizing excavation and fill. The veranda roof is structurally separated from the roof of the interior living area.  Both roof forms and site treatment were inspired by the idea of touching the earth lightly,an approach popularized by Australian architect Glenn Murcutt.  Working with the contours also maintains the stability of the site, reducing chances of erosion and landslide,and minimizing the need for costly retaining walls 

TORTOLA, BRITISH VIRGIN ISLANDS
DESIGNED: 2015
COMPLETION: N/A