Casa MarVista

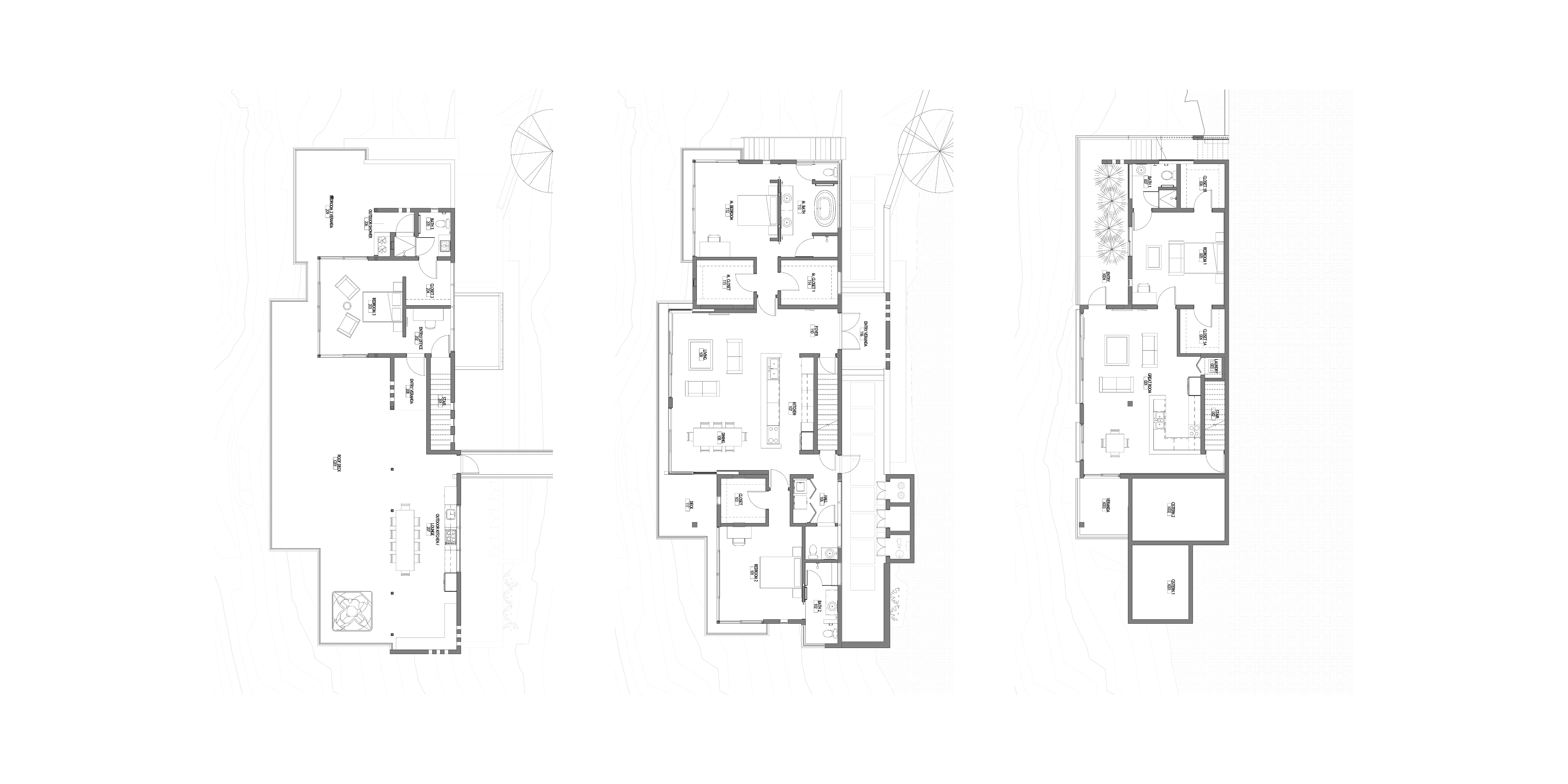
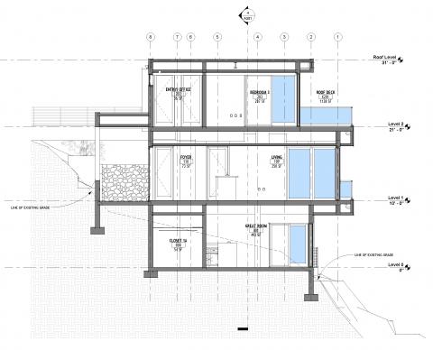
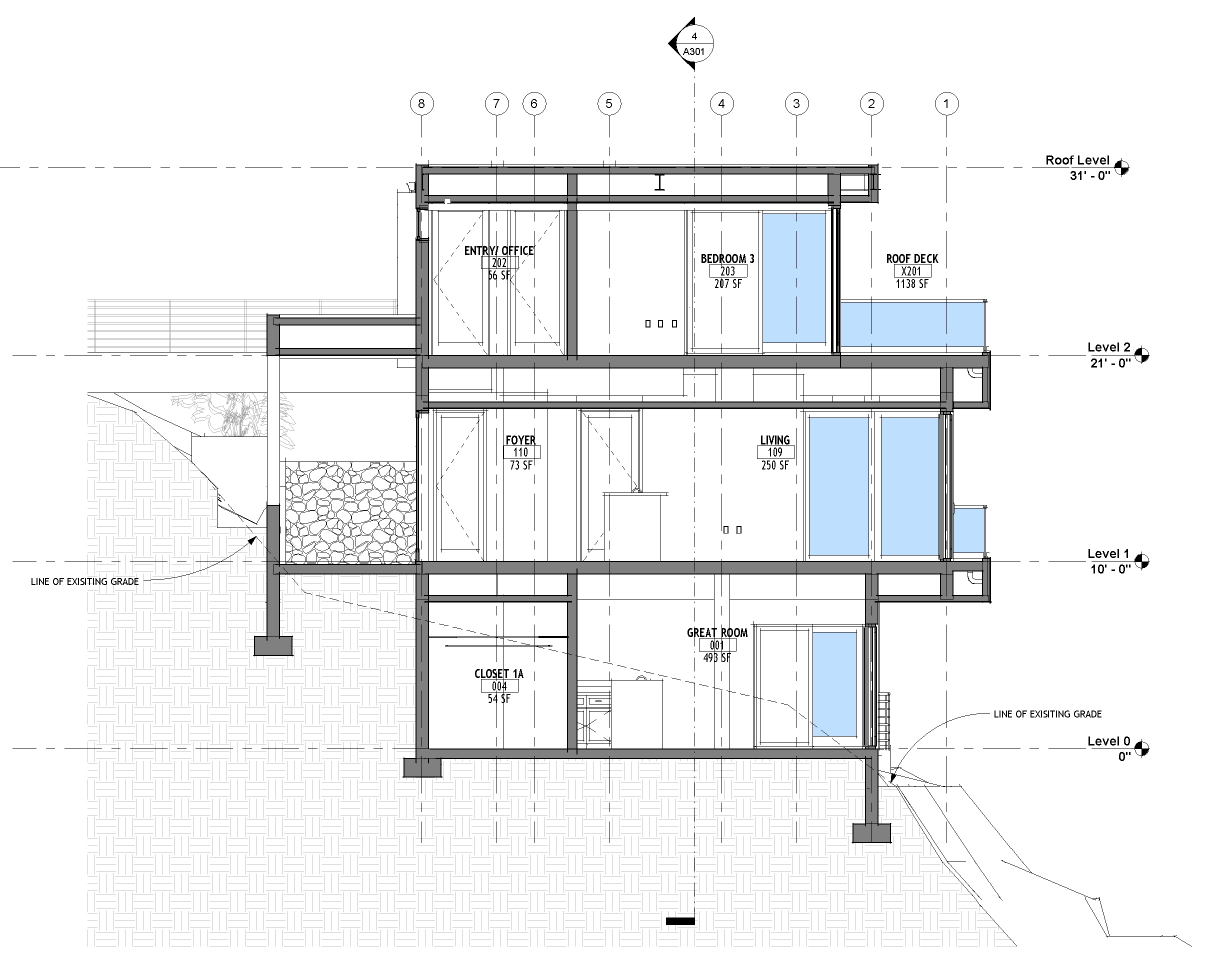
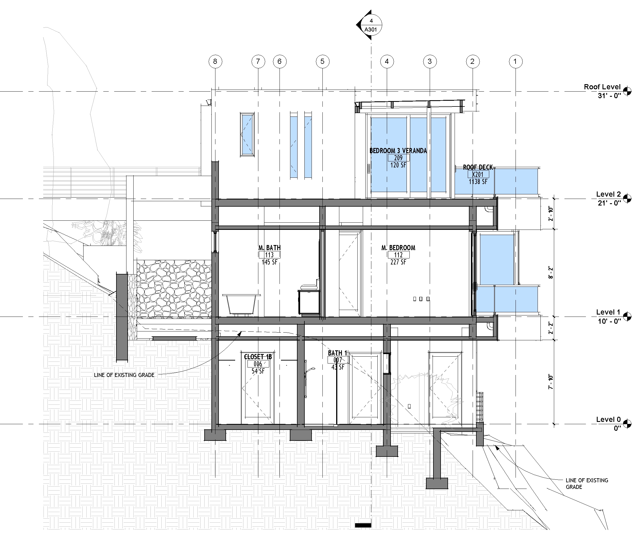
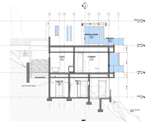
Casa MarVista nestles into a bluff overlooking the Caribbean Sea with views of several of the Virgin Islands in the near distance.  The volume is defined by white horizontal planes delineating the different functional areas of the building.  At the base,there is a one-bedroom rental apartment or nanny suite; the middle hosts the main family spaces,and a guest suite perches at the top adjacent to the roof-deck entertaining area.  Designed for indoor-outdoor living in the Caribbean climate,the glass walls open up at all levels to admit the sea breezes,while the overhangs provide much needed shade and hide roll-up hurricane shutters.  Smaller windows to the rear provide cross ventilation and facilitate privacy from the road above.  Pops of brilliant colour create a vibrant contrast to the otherwise neutral palette.  It wouldn’t be Caribbean if we didn’t have some fun with it!!

TORTOLA, BRITISH VIRGIN ISLANDS

DESIGNED: 2016