La Vida Homes, Eagle's Nest

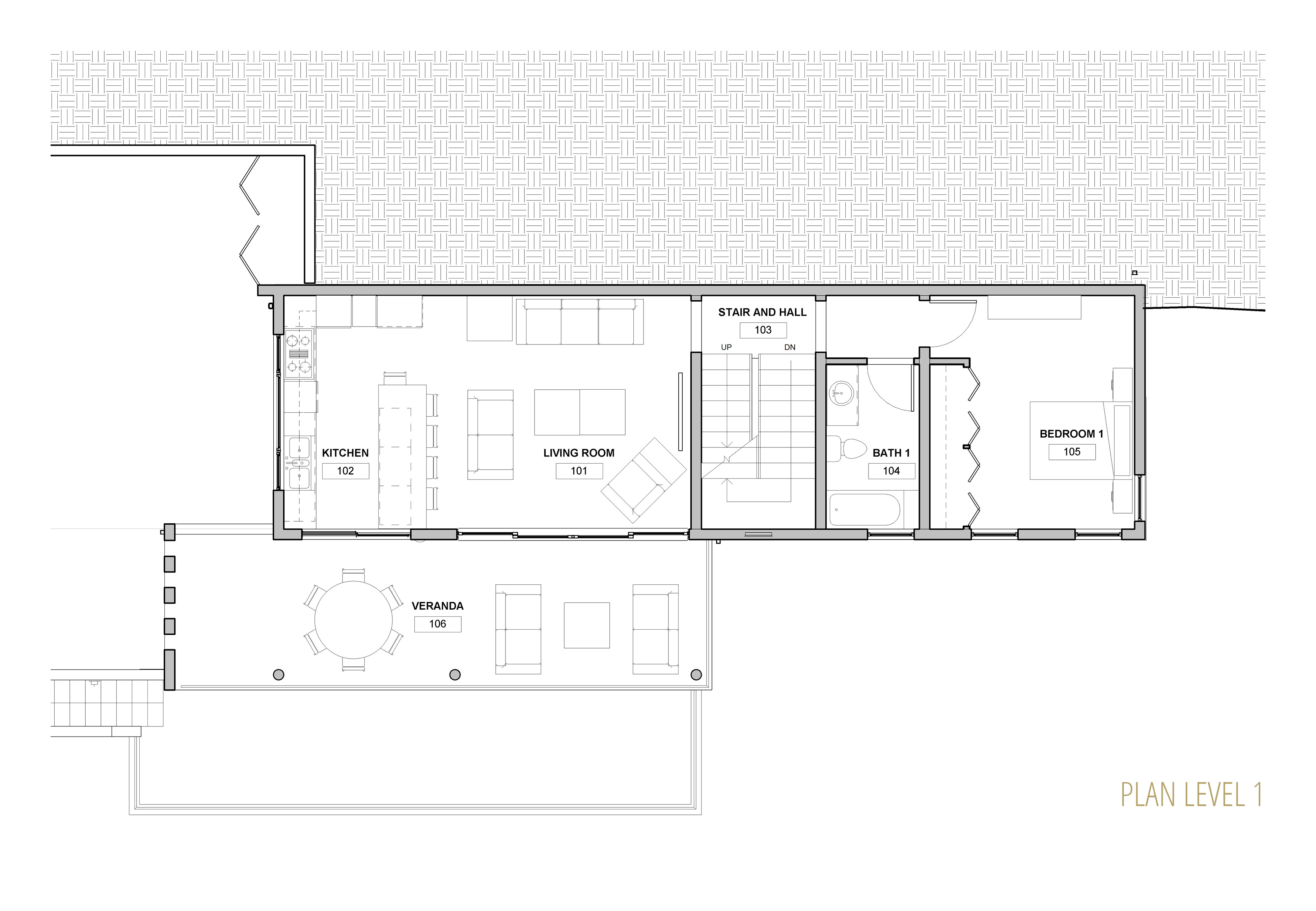
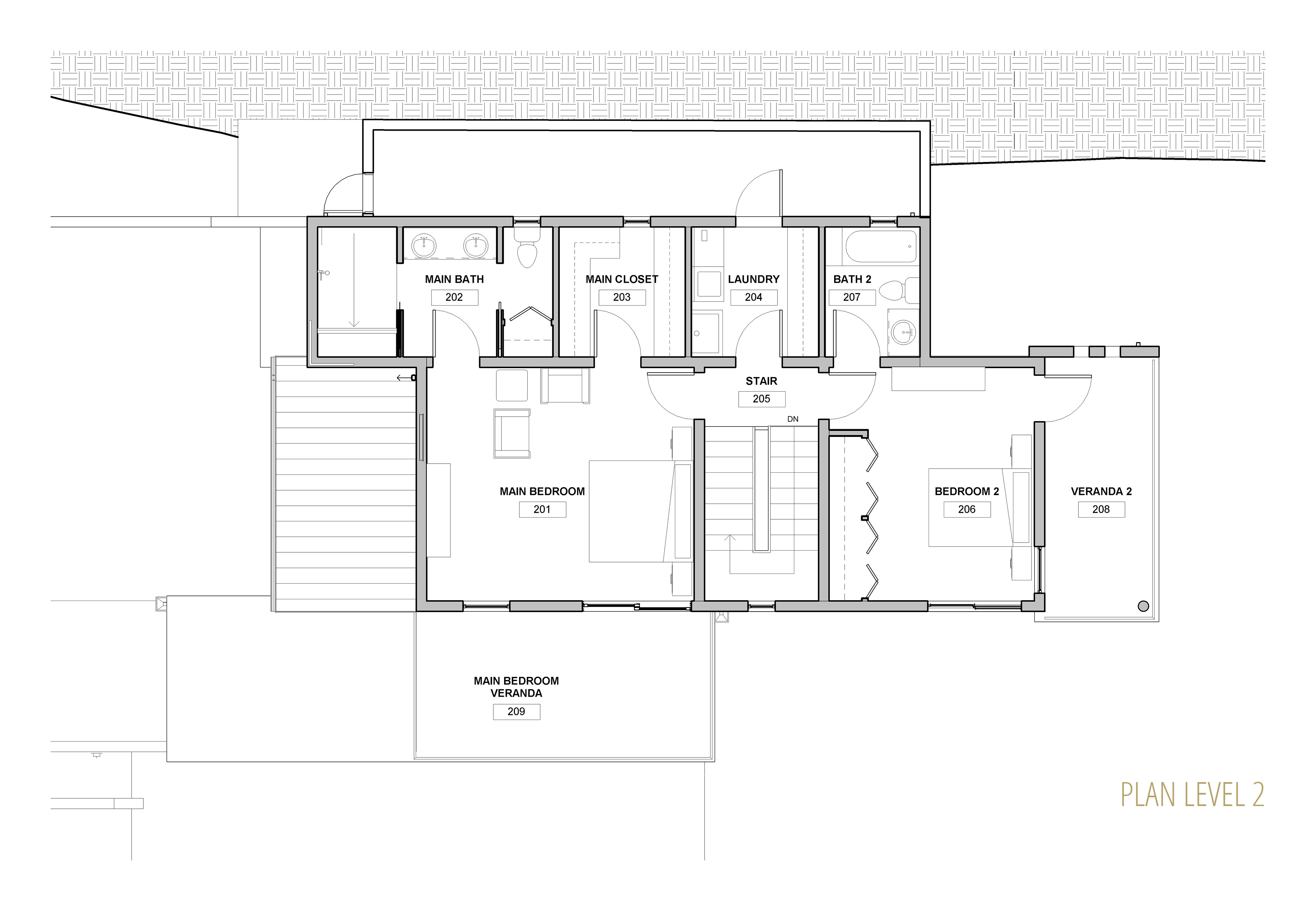
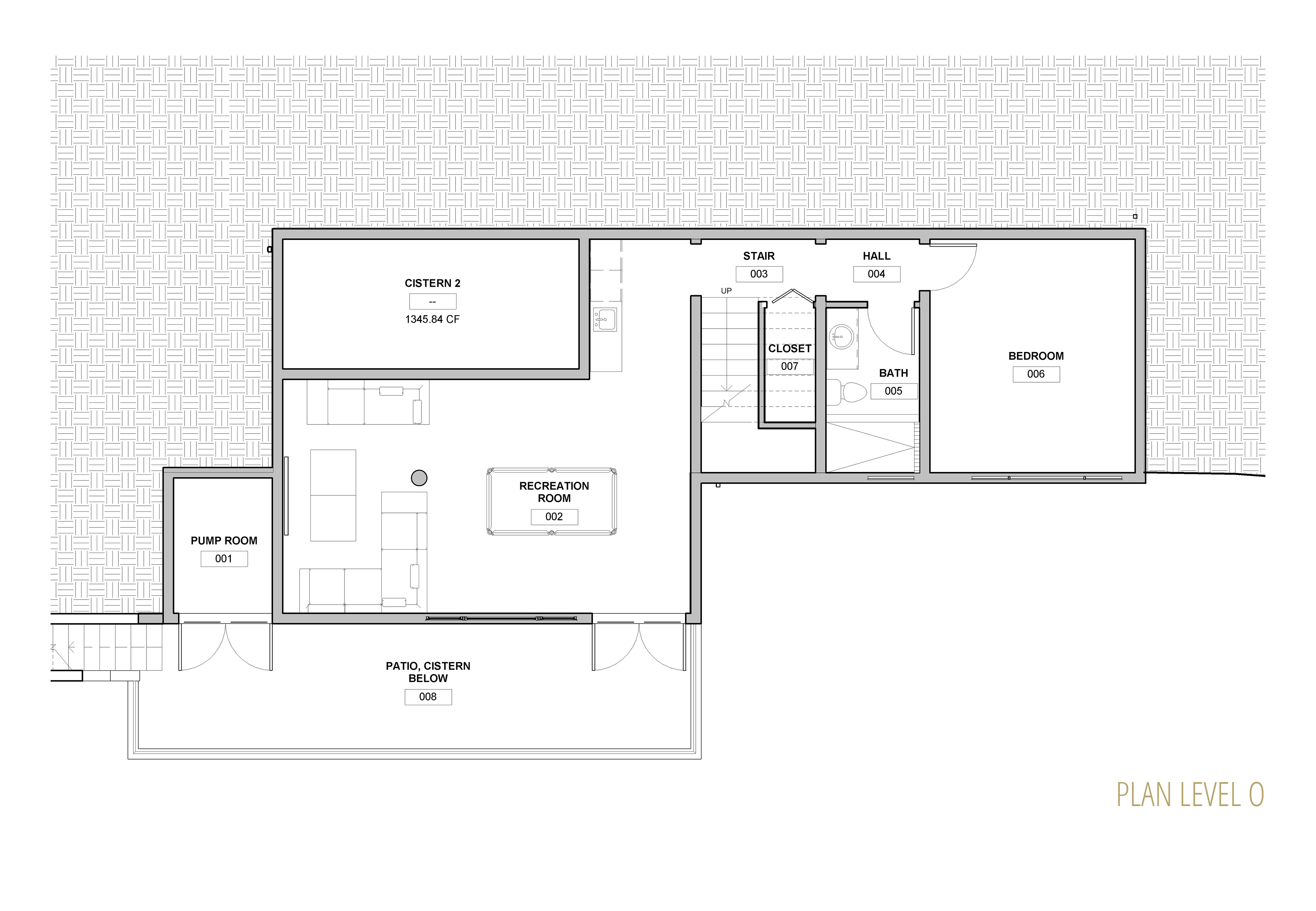
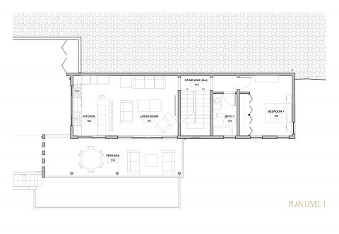
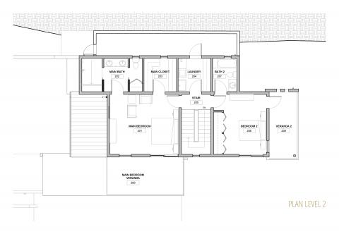
Eagle's Nest is a three bedroom, three bathroom house with a basement recreation area which doubles as a potential one bedroom rental apartment. This project is a case study in design for extremely steep sites without creating massive free-standing retaining walls. The site is a half-acre lot with a slope slightly steeper than 2:3 (67%).  Our approach was to use a single-room deep plan on the Main Level where the open-plan layout of the living spaces allows for excellent cross-ventilation, even though the entire rear wall is built into the hillside. The Upper Level features a rear module containing all of the service areas for that level. The client for the first build desired a contemporary style, including flat roofs to accommodate a future solar array. However the Master Bedroom features a vaulted ceiling to introduce a bit of tradition and a special feature for the owner's private space. 

This design is available for purchase and adaptation to other similar sites. The images show a variety of options for combining flat versus sloped roofs, and an open versus covered Master Verandah.  

LA VIDA HOMES PROGRAM

COMPLETION: 2015

The La Vida Homes Program features pre-designed, previously approved plans available for adaptation to a customer's site depending on slope and exposure. *Enlargement requires additional structural fees beyond the base price.