La Vida Homes, Newell

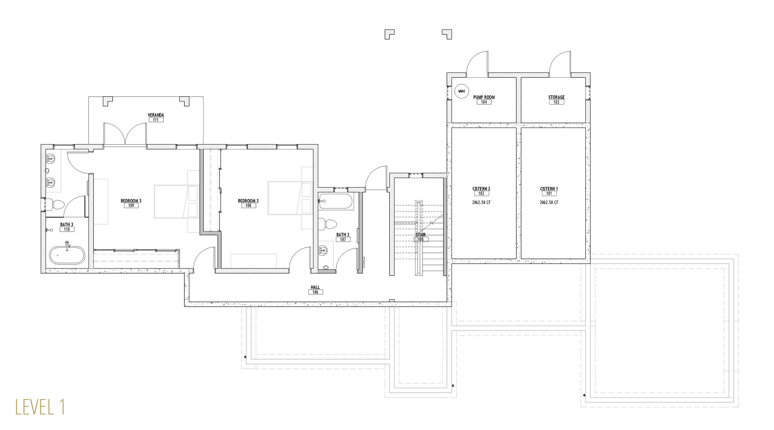
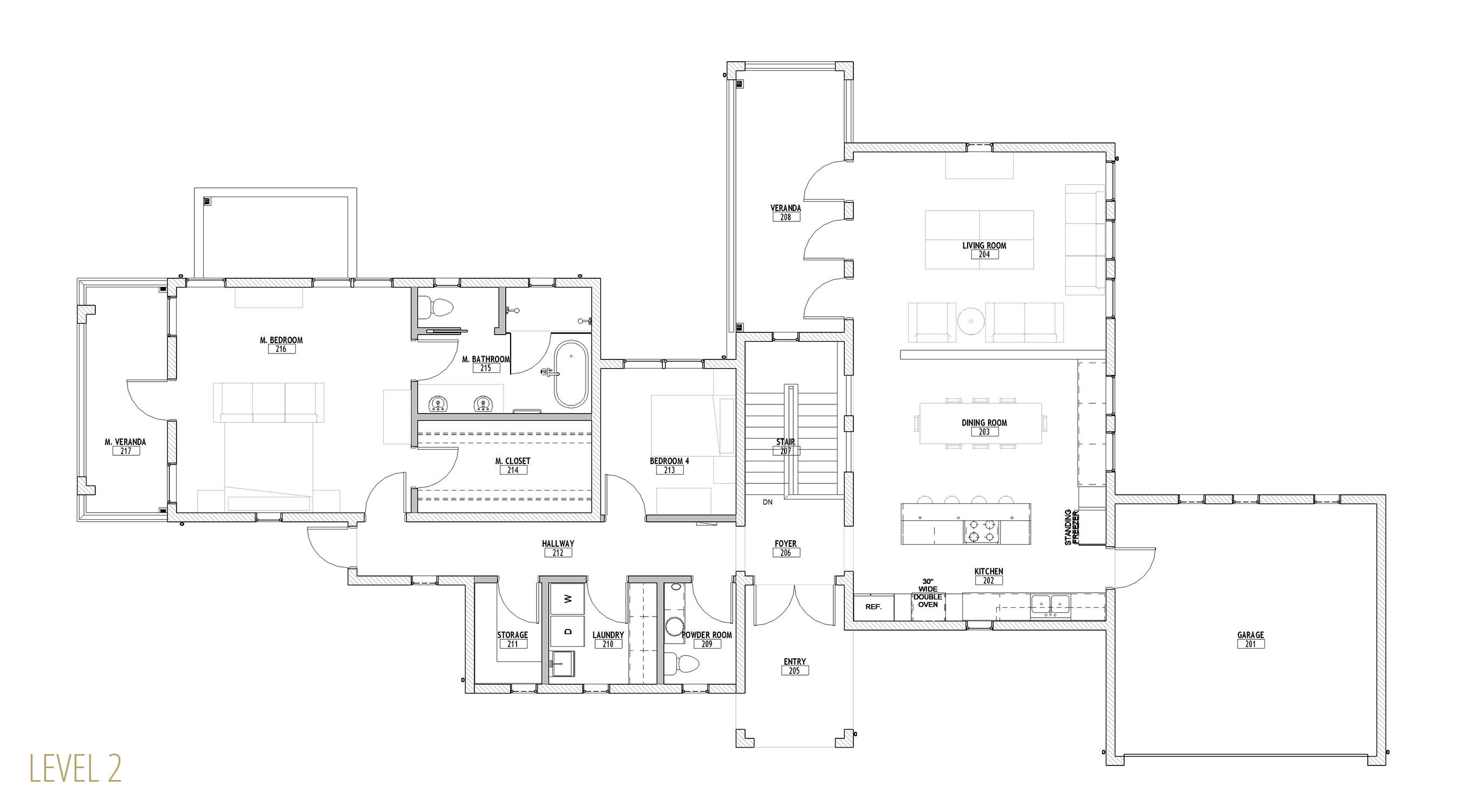
This design was inspired both by traditional British Caribbean cottages and by the work of Hugh Newell Jacobsen in reinterpreting traditional New England homes.  These building types share a common DNA, while set in very different climates.  High ceilings throughout encourage passive cooling, by exhausting heat through clerestory windows set into the gable ends.  The generous floor to floor height navigates the site slope, balancing cut and fill while minimizing the need for retaining walls.   The Master Suite and Study/ Guest Bedroom are on the Entry level, along with the open plan Great Room, to allow for single-level living. Two additional bedrooms and bathrooms are tucked below alongside the generous cisterns; both bedrooms have ample front exposure for adequate ventilation.  The lower access hallway runs along a fully waterproofed, drained and furred out retaining wall to ensure that the spaces remain dry and mold free, and large louvered windows and doors ensure excellent air circulation throughout.

The first build for Newell, overlooks a valley with sideways views of the sea to both east and west.  The construction of the house required no separate retaining walls, however some were unavoidable to support the driveway.  This design is available for purchase and adaptation to other similar sites. 

LA VIDA HOMES PROGRAM

COMPLETION: 2019

The La Vida Homes Program features pre-designed, previously approved plans available for adaptation to a customer's site depending on slope and exposure. *Enlargement requires additional structural fees beyond the base price.