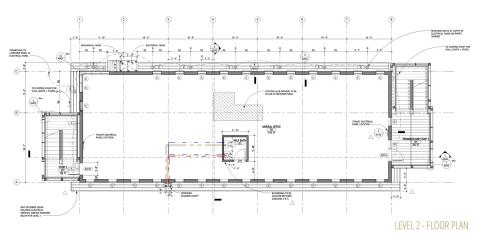
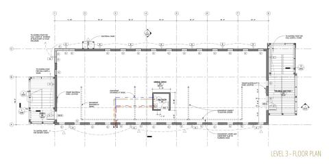
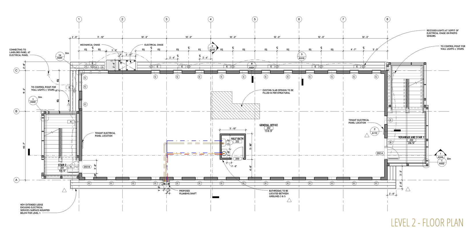
R. O’Neal Business Services Office Building

Repairs to, and remodel of existing 3,600 sf office building damaged in Hurricane Irma. Addition of one floor, and concrete roof terrace. Relocation of upper floors’ entrances to sides away from gas station drive-lanes. Development of site plan to maximize parking spaces.  Electric car charging station to be located at two parking spaces.

ROAD TOWN, TORTOLA, BVI