Youth Centre Proposal
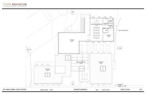
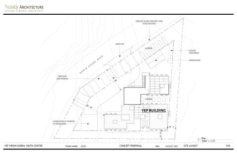
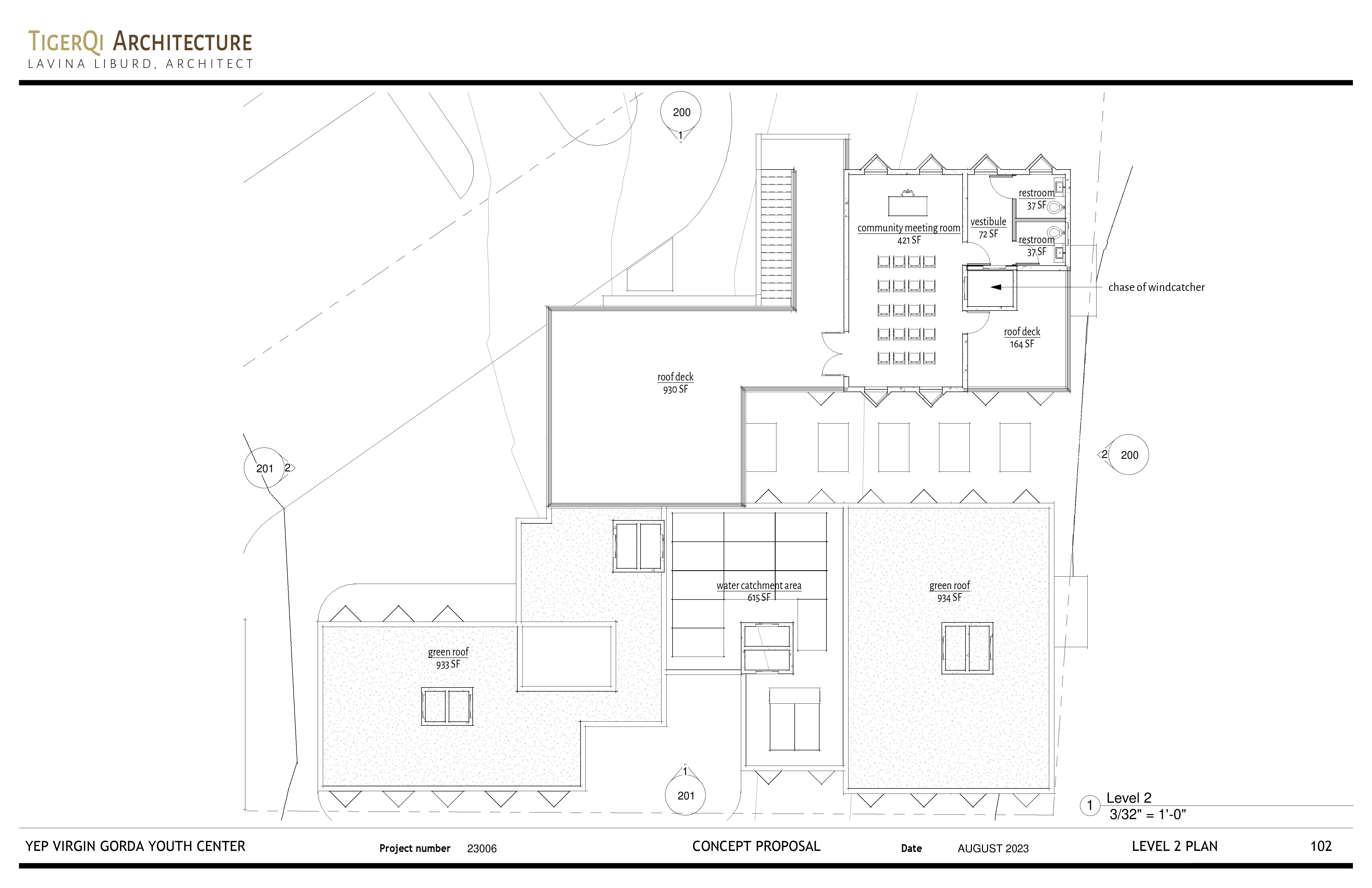
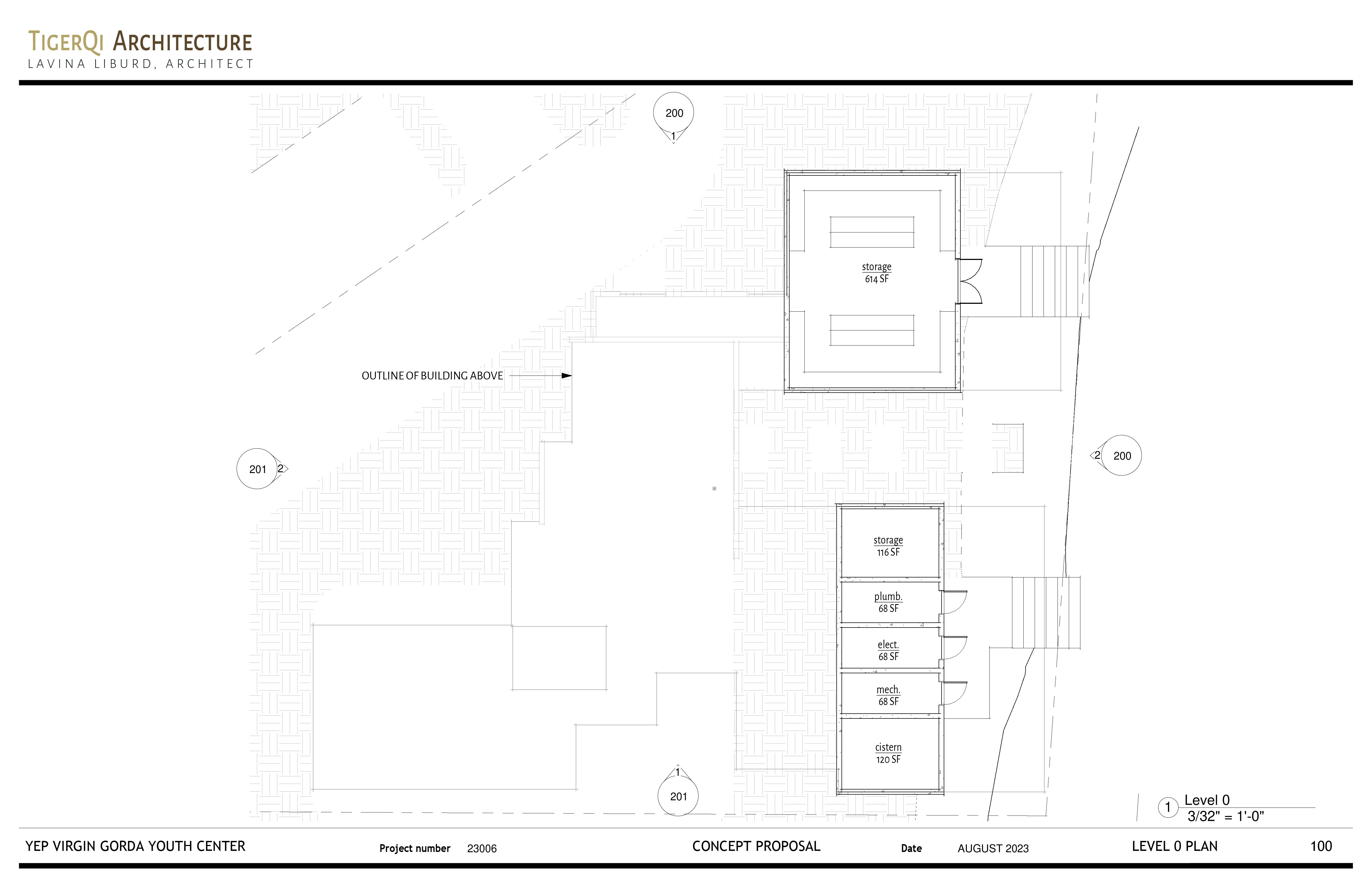
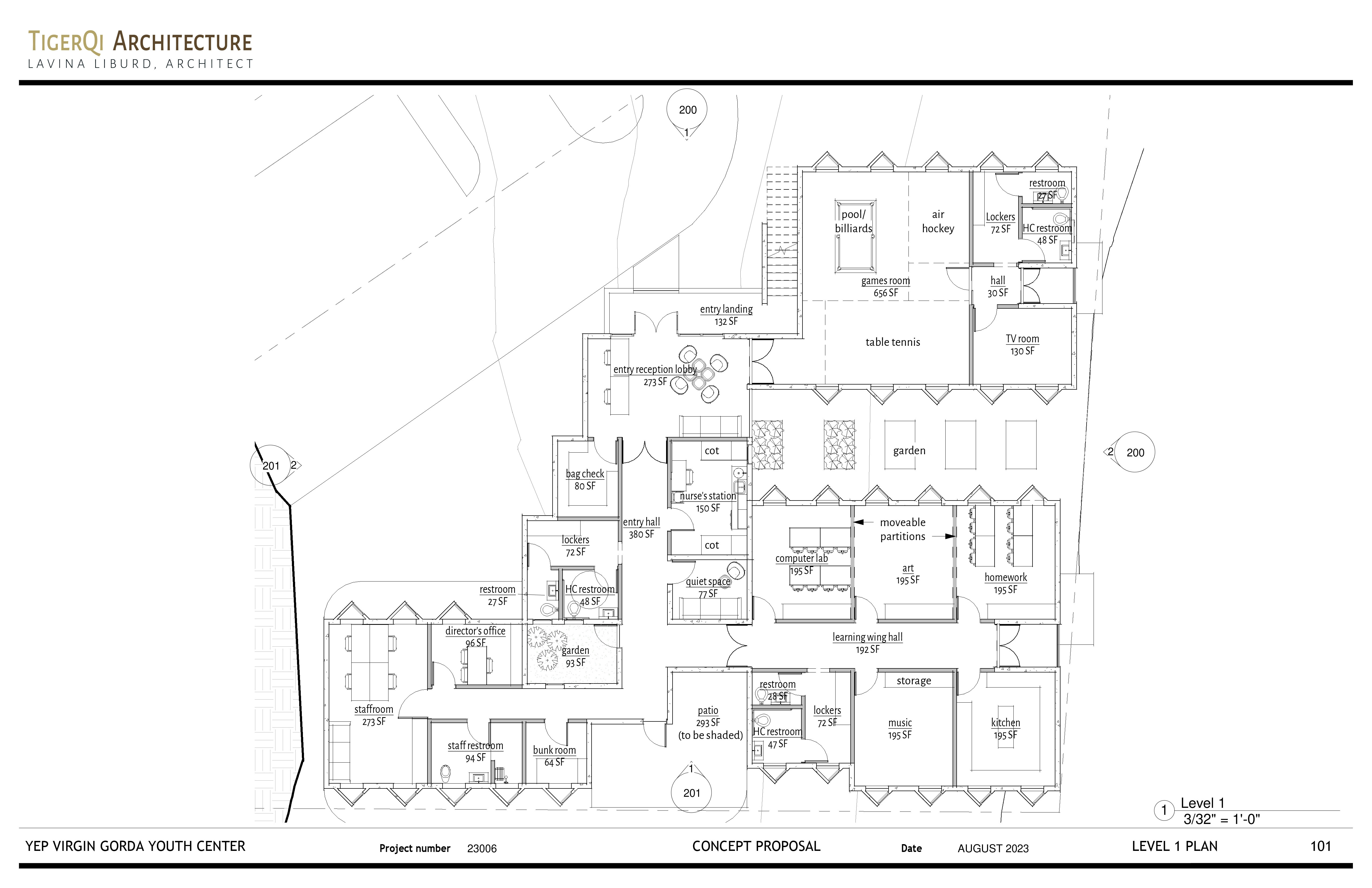
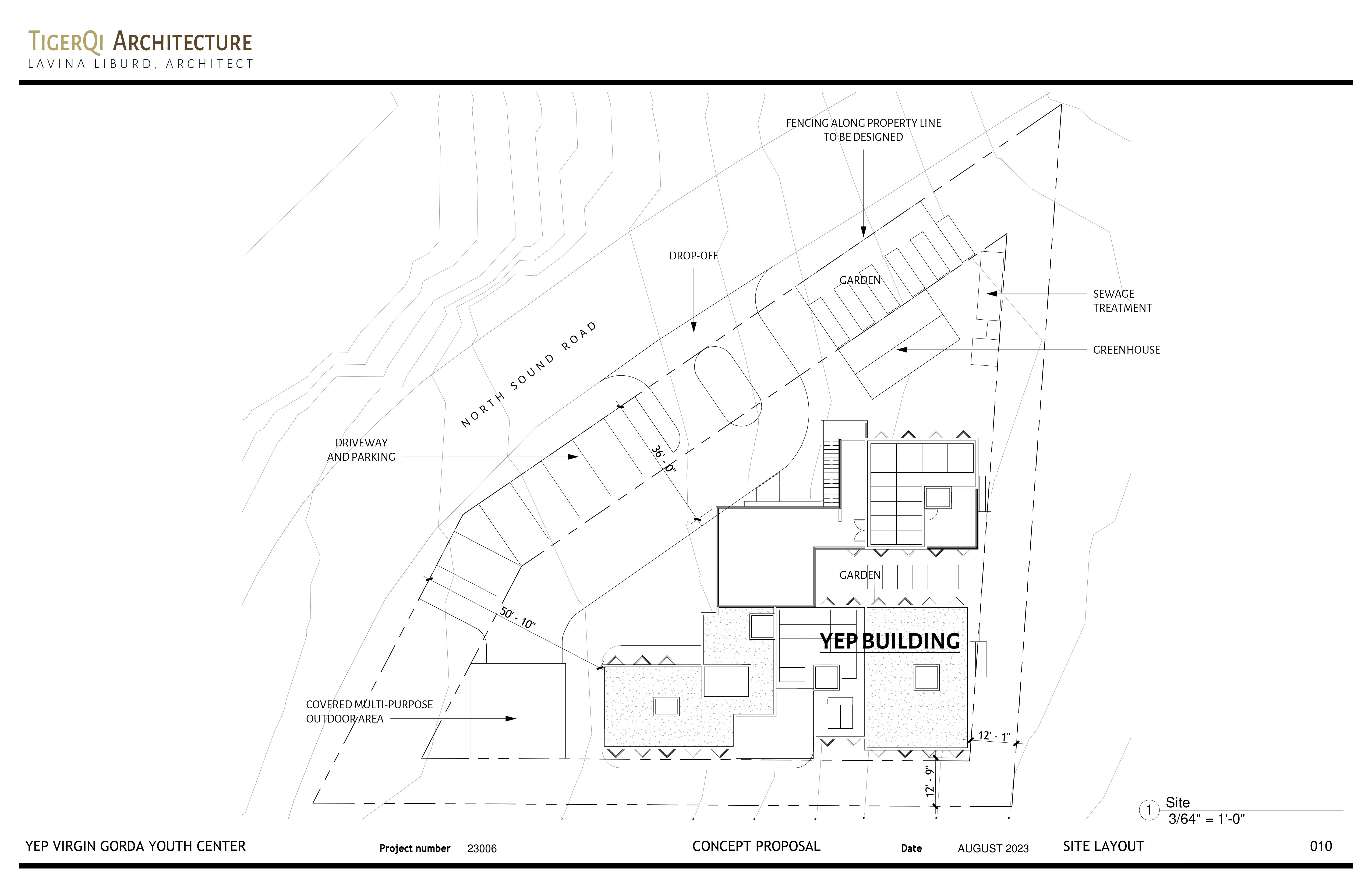
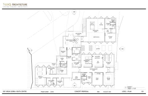
We were invited to present a proposal as part of a design competition for a Youth Centre to be located on a prominent site on the North Sound Road entering Hansome Bay. This is a busy main road, and careful consideration was given to drop-off area design and safety. The brief indicated that the desired facility would be 3,500 to 4,500 sf. We carefully analyzed the activities outlined in the Project Brief and allocated moderate sized spaces based on international standards. This resulted in a space program which required 6,600 sf to meet the brief. The required sports courts took up quite a large area of the site, so our proposal suggested that nearby existing sporting facilities or an adjacent plot of land be utilized to accommodate these, as possible land acquisition was alluded to in the Design Brief.
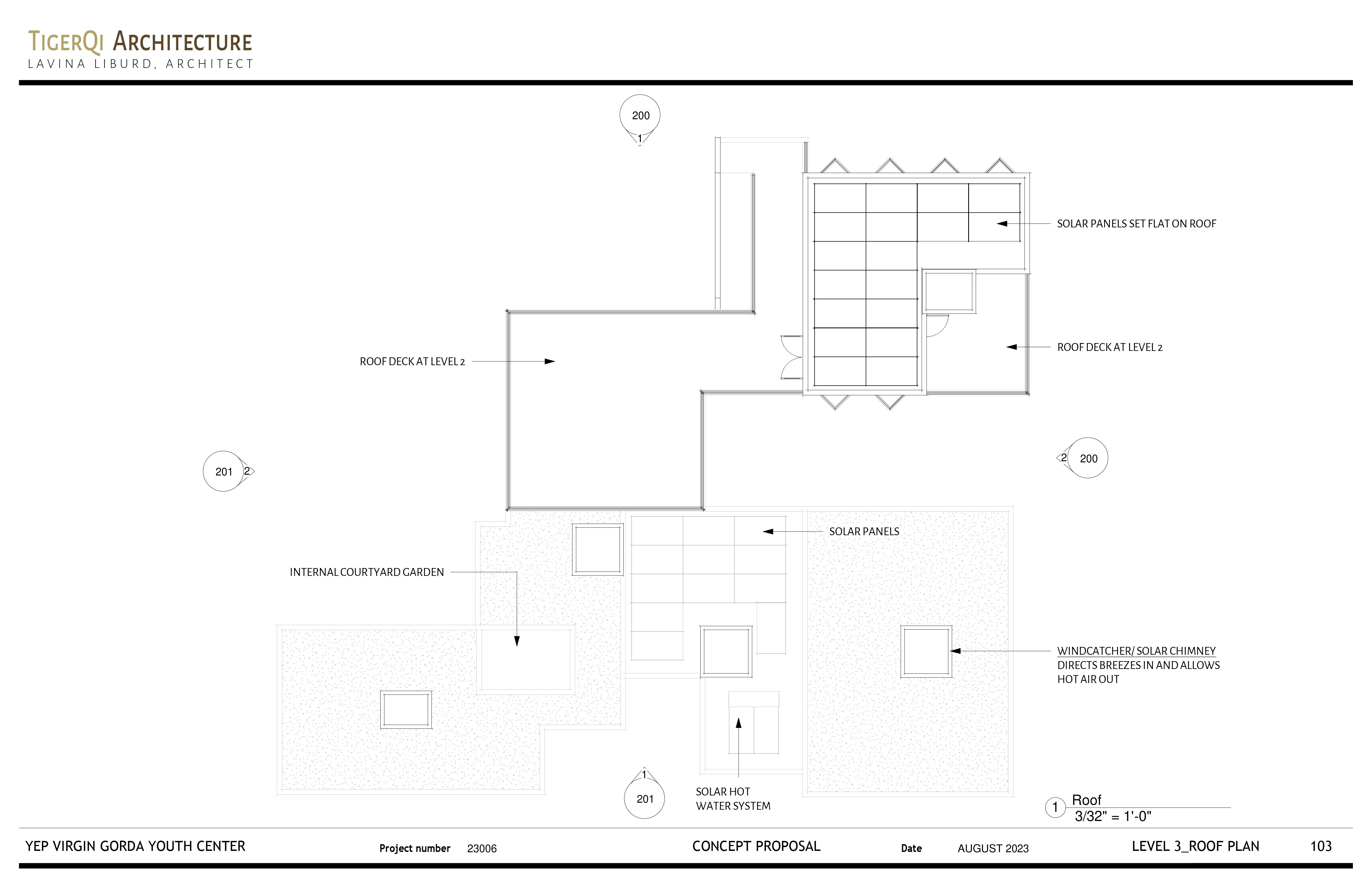
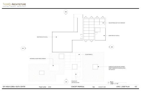
The brief indicated a strong desire for sustainable design and natural ventilation in tension with the perceived necessity for air-conditioning in our tropical climate. In the design we leaned heavily into Architectural strategies to maximize natural ventilation and allowed for a “mixed-mode” approach. A building designed for effective natural ventilation will often require more site-space as pathways for airflow must be designed in. These include courtyards, atria, and vertical chases in multistory buildings. “Wind-catchers” fitted with louvers are used at the corridor roofs, with louvers set at different orientations to capture the prevailing winds at different times of the year. A central dividing wall adds function as solar chimneys to let hot air out. Windows on the north and south facades angle out to capture the easterly breezes that flow into the courtyard and around the building. The angle and operation allow them to direct fresh air into each room. Another sustainable design strategy is the use of Green Roofs to provide insulation and add vegetation. Other roof areas allow water capture for the cisterns and placement of solar panels. Rigid or spray foam insulation would be used there.
While our team was not chosen for the construction of the Youth Centre, we believe that this design contains many elements which illustrate our considered approach to sustainable design for the tropics.
View full proposal here
COMPLETION: Not Applicable